Vytvorili sme niekoľko cenových príkladov kuchýň pre lepšiu orientáciu. Každá kuchyňa, ktorú vyrobíme je na mieru a ceny sa líšia dekórom a materiálom dvierok, veľkosťou kuchyne a hlavne vnútornou výbavou skríň.
Dohodnite si stretnutie ešte dnes na našich štúdiách a získajte tu najlepšiu ponuku.
tel.: 0949 337 854 | email: studio@lightstyle.sk
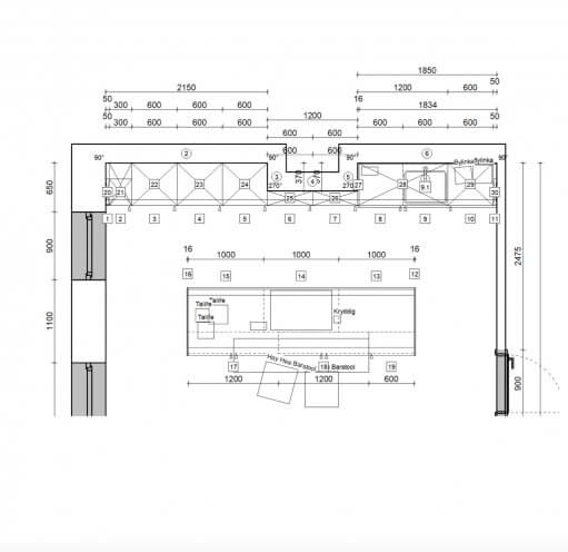
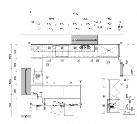
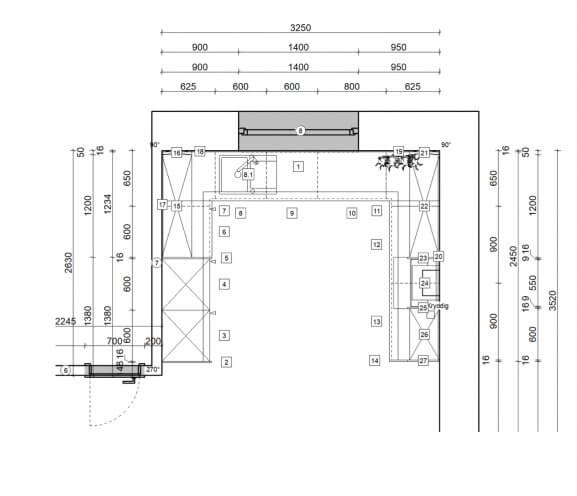
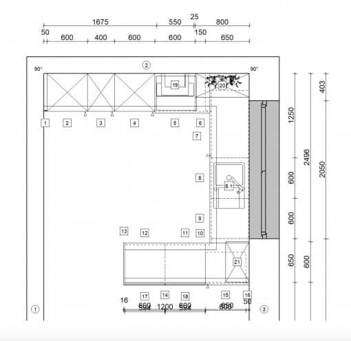
Kuchyne do U
Dizajn kuchýň, ktoré sú do tvaru U Vám ponúka veľa pracovnej plochy, ktorú určite využijete. Všetko väčšinou býva rozostavených po obvode troch stien, takže máte všetko po ruke a ešte vám zostane veľa miesta, ktoré môžete využiť ako odkladaciu plochu.
Rustikálna kuchyňa z masívu
Kuchynská linka s masívnymi dvierkami (dub) lakovanými do hodvábne sivej farby v kombinácii s pracovnou doskou v dekore imitujúceho dubové drevo. Presklené skrinky s vitrážou a mliečnym sklom dodávajú kuchyni svieži vidiecky vzhľad. Kovania použité v kuchyni sú od značiek HETTICH a BLUM.
Zobraziť detail →Matná šedá kuchyňa
Matná šedá kuchyňa v bezúchytovom prevedení v tvare U. Dvierka kuchyne sú matná bridlicovo šedá. Pracovná doska kuchyne je imitácia šedého betónu. Cena kuchyne je vrátane DPH a je v nej započítaná cena kovaní a tlmení Hettich a Blum.
Zobraziť detail →Biela kuchyňa v bezúchytové prevedení
Biela lesklá kuchyňa v prevedení alpskej bielej. Celá kuchyňa je v bezúchytovom prevedení. Pracovná doska kuchyne je imitácia šedého betónu. Cena kuchyne je vrátane DPH a je v nej započítaná cena kovaní s tlmeniami HETTICH a BLUM.
Zobraziť detail →Priestranná bezúchytová kuchyňa
Priestranná kuchyňa v bezúchytovom prevedení v tvare U. Dvierka kuchyne sú v prevedení matnej bielej a imitácie dubu Sierra. Pracovná doska kuchyne je imitácia šedej bridlice. Cena kuchyne je vrátane DPH.
Zobraziť detail →Biela bezotlačková kuchyňa
Biela bezúchytová kuchyňa s povrchom proti odtalčkom prstov. Dvierka kuchyne sú v dekore matnej alpskej bielej. Pracovná doska a obklad kuchyne sú imitácia Ferro Bronze. Cena kuchyne je vrátane DPH.
Zobraziť detail →Biela kuchyňa vo vysokom lesku
Biela lakovaná kuchyňa vo vysokom lesku v tvare U. Dvierka kuchyne sú vo vysokom lesku alpskej bielej. Kuchyňa je v bezúchytovom prevedení. Pracovná doska a obklad kuchyne sú imitácia šedej bridlice. Cena kuchyne je vrátane DPH a vrátane kovaní s tlmeniami.
Zobraziť detail →Piesková kuchyňa v matu
Matná kuchyňa v tvare u v dekore piesku. Celá kuchyňa je v bezotlačkovom prevedení. Pracovná doska kuchyne je imitácia dubu Endgrain. Cena kuchyne je vrátane DPH a je v nej započítaná cena kovaní s tlmeniami HETTICH a BLUM.
Zobraziť detail →Biela kuchyňa s prvkami dubu
Biela kuchyňa do U v rustikálnom štýle. Dvierka kuchyne sú v prevedení matnej alpskej bielej. Pracovná doska je imitácia masívneho dubu. Cena kuchyne je vrátane DPH a je v nej započítaná cena kovaní s tlmeniami HETTICH a BLUM.
Zobraziť detail →Bridlicová kuchyňa v matu
Kuchyňa do U v dekore matne šedej bridlice. Celá kuchyňa je v bezúchytovom prevedení. Pracovná doska a obklad kuchyne sú imitácia šedého betónu. Cena kuchyne je vrátane DPH a je v nej započítana cena kovaní s tlmeniami HETTICH A BLUM.
Zobraziť detail →Biela kuchyňa s imitáciou duba
Biela kuchyňa s vysokými skriňami siahajúcimi po strop. Kuchyňa je vo farebnej kombinácií alpskej bielej a imitácie Dubu Sierra. Kuchyňa je doplnená zafrézovanou lištou namiesto úchytov. Cena kuchyne je vrátane DPH a je v nej zarátaná cena kovaní s tlmeniami HETTICH a BLUM.
Zobraziť detail →









































